孔板流量計

-
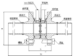
L(F/R)型標準環室孔板、法蘭孔板節流裝置是無刻度的流量測量裝置,它與氣動、電動差壓變送器或雙波紋管差壓變送器配套使用。在冶金、化工、石油、電力工業系統連續測量介質溫度≤400℃的液體、氣體、蒸汽流經孔板所產生的壓差,由變送器將該壓差訊號轉換成比例的輸出信號,再由二次儀表或調節器,對被測量流量進行記錄,指示或調節。







?
Copyright ? 西安為普測控技術有限公司 陜ICP備18011211號-1 網站地圖 網站管理 陜ICP備18011211號-1